Neubau Eigentumswohnung Utzenstorf
Zu verkaufen Eigentumswohnung in 3-Familienhaus im Erdgeschoss an der Kirchstrasse 2 Utzenstorf: Ihre eigene Wohnung 130 m2 netto Wohnfläche und 180 m2 Landanteil.
Die Wohnung befindet sich an bester und sehr zentraler Lage im Dorfkern von Utzenstorf. Die Verwendung von Holz bei Ihrer neuen Wohnung lässt Sie künftig in einem gesunden und angenehmen Raumklima leben. Die trockene Bauweise ist ökologisch und langlebig. Der mehrschichtige und hochwertige Wandaufbau in Holz weist eine bauphysikalisch optimale und diffusionsoffene Bauweise auf, welche ein „Atmen“ der Wand ermöglicht. Sie hat ausserdem den Vorteil, dass kein feuchtes Klima entstehen kann, denn Holz ist in der Lage, die entsprechende Feuchtigkeit zu regulieren und ein angenehmes und gesundes Wohnklima zu schaffen. Besonderen Wert legen wir auf eine optimale Wärmedämmung und das zukunftsweisende Energiekonzept. Der mehrschichtige Aufbau bietet verschiedene Vorteile, insbesondere werden die sommerliche Überhitzung und die winterliche Unterkühlung vermieden. Unser Wandaufbau entspricht den erhöhten bauphysikalischen Konstruktionsregeln. Sämtliche Fenster bestehen aus einer zeitgemässen Rahmenausführung mit einer dreifachen Isolierverglasung. Die umweltfreundliche und ökologische Fernwärmeverbund-Heizung zeugt für einen nachhaltigen Umgang mit Ressourcen. Alle Materialien, die beim BBAG-Haus eingesetzt werden, sind giftfrei und biologisch bedenkenlos.
Das Naturprodukt Holz hat sich seit Jahrhunderten bis in unsere Zeit bewährt und ist wieder sehr stark gefragt. Die heutige moderne Bauweise mit den neusten Erkenntnissen und Möglichkeiten spricht für eine Zukunft mit Holz am Bau. Zudem leisten wir einen enormen Beitrag zur Umwelt indem wir mit dieser Wohnung ca. 10 Tonnen CO2 durch das Holz nachhaltig binden.
Diese grosse und helle Wohnung befindet sich im Erdgeschoss des neu erstellten Dreifamilienhaus, wurde als Hybridbau mit einem mehrschichtigen Wandaufbau für eine optimale Wärmedämmung und gesundes Wohnklima erstellt. Naturholzfenster, Besucherparkplatz, Anschlüsse für Schwedenofen und Frischluftzufuhr sind vorhanden.
Die drei Schlafzimmer sind alle mit Raumhohen Naturholzfenstern ausgestattet, Elternschlafzimmer mit begehbarem Kleiderschrank und eigenem Badezimmer. Beide Badezimmer verfügen über geräumige Duschen, eine ist zudem mit einer Regendusche ausgestattet. In der Wohnung ist ein Reduit integriert. Küche, Essbereich und Wohnen sind offen gestaltet. 180 m2 eigene Umgebung.
Wünsche bei Badezimmer, Küche und Bodenbelag können noch berücksichtigt werden, Inneneinteilungswünsche teilweise ebenfalls noch.
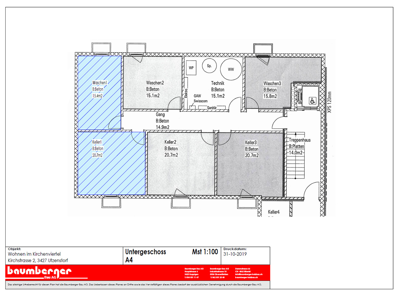
Im Untergeschoss befinden sich ein eigenes Kellerabteil sowie eine eigene Waschküche, beide Räume mit Fenster.
Im Preis nicht inbegriffen: Inneneinrichtungen/ Schränke/ Möbel/ Waschmaschine/ Tumbler/ Schwedenofen/ Handänderungsgebühren/ Schuldbriefe/ Einstellhallenplatz, usw.
Die Wohnung kann auf Voranmeldung gerne Besichtigt werden.
Diese Beschreibung ist kein vertragliches Dokument, die darin enthaltenen Angaben sind unverbindlich und können Änderungen unterliegen.
Für mehr Informationen kontaktieren Sie uns bitte unter 034 531 11 47 oder via E-Mail unter info@baumberger-holzbau.ch, gerne lassen wir Ihnen unsere umfangreiche Dokumentation über die neu erstellte Eigentumswohnung zukommen.
Utzenstorf und seine Wohnvorteile auf einen Blick
Utzenstorf ist ein ideales Wohn- und Arbeitsdorf mit einer ausgezeichneten Infrastruktur. Zudem bietet Ihnen Utzenstorf alles, was ein intaktes Dorf benötigt. (Kindergarten, Kinderhort, Schulen, Kirchen, Lebensmittelgeschäfte, Banken, Gewerbe, Arztpraxis, Tierarzt und ein vielseitiges Vereinsangebot). Die Lage an der Kirchstrasse 2 bewerten wir als erstklassig. Sie ist ruhig und bietet sehr hohen Wohn- und Lebenskomfort.
• Interessantes, kulturelles Angebot
• Gute Einkaufsmöglichkeiten in der Stadt Bern, Shoppyland Schönbühl, Lyssach, Burgdorf und natürlich in Utzenstorf
• Nahe der schönen und beliebten Aare-Stadt Solothurn gelegen
• Nahe der Stadt Burgdorf gelegen
• Gut ausgebaute Infrastruktur (Kindergarten, Schulen, Einkauf, Bank, Post)
• Schöne Landschaften und Naherholungsgebiete
• ÖV: Bus und Zug in unmittelbarer Nähe
• Traditionsreiche KMU‘s mit interessanten Arbeitsplätzen


